Hager 4501 Rim Exit Device | Hager 4500 Series Grade 1 Exit Device | Non Fire Rated
FEATURES
Covers
Stainless steel, zinc
Cover Tube
Aluminum
Dogging
• Hex key dogging standard on panic-rated devices
• Less dogging available on panic-rated devices, specify LD
• Cylinder dogging available on panic-rated devices, specify CD (3902 mortise cylinder with standard cam sold separately. Cylinder Length of 1-1/8” (29mm) - 1-3/8” (35mm) is required.)
End Cap
Flush (Zinc)
Fasteners
• Wood and machine screws
• Thru-bolts supplied standard Latchbolt: 3/4” (19 mm) throw, pullman type with automatic dead-latching, stainless steel
Strikes
• Stainless steel with stainless steel pin and roller - included standard with panic device
• Solid stainless steel - included standard with fire-rated device
• Surface applied to frame with slotted holes for easy adjustment
• Double door strike for use with surface vertical rod and rim device available
SPECIFICATIONS
Door Thickness
1-3/4” (44 mm) - Standard up to 3”, except with night latch (NL) which is 2-1/2”
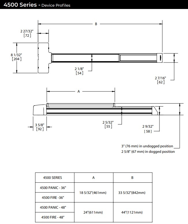
Door Width
• 36’’ (914 mm) field sizeable to 30’’ (762 mm) panic-rated door and 28” (711 mm) fire-rated door
• 48’’ (1219 mm) field sizeable to 36’’ (914 mm) panic- or fire-rated door
Projection
• 3” (76 mm) in undogged position
• 2-5/8” (67 mm) in dogged position
Stile Width
• 5-3/8” (137 mm) - minimum stile width required for single door and 5/8” (16 mm) stop
• 4-7/8” (124 mm) - minimum stile width required for double door x surface vertical rod with double door strike
• 5-3/4” (146 mm) - minimum stile width required for double doors with 2” (51 mm) mullion
• 5” (127mm) - minimum stile width required for double doors with a middle rail and a 2” mullion
• All stile widths are measured from door edge.
Notes
• Recommended for use on appropriately reinforced doors
• Where fire rated rim x rim x mullion is used order 4912 Strike and Hook Kit
Hager 4500 Fire Rated Exit Device Certifications and Compliance

Hager 4500 Exit Device Profile

